
Теплообменники труба в трубе (тип ТТ)
до 9 баллов
20 лет
ООО "НПО "Спецнефтемаш"
Теплообменное оборудование в наличии:
Многие процессы в разных отраслях промышленности и производства предусматривают охлаждение и нагревание в системе жидкость-жидкость. Для этих целей применяется теплообменник «труба в трубе» (ТТ), который представляет собой конструкцию, состоящую из двух труб разного диаметра, вмонтированных одна в другую.
Теплообменник тип ТТ работает по следующему принципу: одна из сред транспортируется по внутренней трубе, а другая – циркулирует по кольцевому пространству, защищенному снаружи трубчатым кожухом.
Каталог теплообменников ТТ
Сфера применения
Технические характеристики теплообменников дают возможность эксплуатировать данное оборудование в регионах с умеренным и тропическим климатом, а также в районах с сейсмичностью не выше 7 баллов.
Основной сферой применения аппаратов теплообменных типа ТТ являются технологические процессы, предусматривающие нагрев и охлаждение сред в различных отраслях промышленности.
К преимуществам устройства можно отнести небольшие расходы теплоносителей и сохранение их агрегатного состояния в первоначальном виде. В некоторых случаях данный тип оборудования применяют для транспортировки жидких и газообразных сред в условиях высокого давления. В производстве метанола, аммиака и других продуктов теплообменник выполняет функции конденсатора.
Теплообменники ТТ широко применяют в химической, нефтехимической, нефтеперерабатывающей, газовой и других отраслей промышленности.
Однако в атомной промышленности они не используются.
Конструкционные особенности
Конструкция теплообменника ТТ включает два последовательно соединенных элемента, с концентрически расположенными внутри трубами.
Во время движения одного теплоносителя по внутренним трубам, а другого по кольцевому зазору между внутренними и наружными трубами, скорость их прохождения по теплообменнику достигает до 3 м/сек, благодаря относительно небольшому диаметру внутренней трубы и наличию кольцевого зазора. Из-за большой интенсивности движения теплоносителей увеличиваются коэффициенты теплопередачи и тепловые нагрузки, замедляются процессы отложения накипи и загрязнений на стенках труб.
Однако, по сравнению с кожухотрубчатыми моделями, двухтрубные – отличаются большей громозкостью, и на их изготовление расходуется больше металла на единицу поверхности теплообмена.
Виды теплообменников типа ТТ
В зависимости от особенностей конструкции, теплообменники делятся на виды.
Однополочные неразборные (ТТОН). К этому виду относится исполнение с приварными двойниками, которое предназначено для эксплуатации в среде, не дающих и отложений в концентрическом пространстве и внутри теплообменных труб. В таких устройствах используется только чистый теплоноситель и обрабатываемая среда. Однако, в моделях со съемным двойником предусмотрена операция очистки носителя.
Однополочные разборные (ТТОР). Назначением этого вида теплообменников является транспортировка и подогрев сильно загрязненных сред. Оборудование используют в установках для очистки сточных вод, где расход жидкого агента составляет до 60 т/час, а также в паровом подогревателе для продукта с умеренным уровнем загрязнения. Конструкция теплообменника предусматривает температурное удлинение труб при температуре до 150°С.
Многопоточные разборные (ТТМ). Теплообменники предназначены для обеспечения конвективного теплообмена, конденсации или испарения рабочих сред. Оборудование является незаменимым в условиях работы со средами повышенной вязкости и используются в установках, имеющих высокую пропускную способность до 300 т/час. Для повышения производительности теплообмена в теплообменниках используются трубы с продольными ребрами или ошипованные трубопроводы.
Малопоточные разборные (ТТРМ). Используются в системах, где расход агента является относительно малым, от 100 до 15000 кг. Ими оснащаются лабораторные и пилотные установки, (охладители масла, подогреватели мазута). Кроме этого, ТТРМ используются в процессах конденсации/испарения в концентрическом пространстве.
Технические характеристики
| Наименование параметров | Значения параметров для теплообменников типа | ||||
|---|---|---|---|---|---|
| ТТОН | ТТОР | ТТМ | ТТРМ | ||
| Поверхность теплообмена гладких труб, м2 | 0,11-4,45 | 5,0-18,0 | 3,9-93,0 | 0,55-4,6 | |
| Наружный диаметр теплообменных труб, мм | 25; 38; 48; 57; 89; 108; 133; 159. | 89; 108; 133;159 | 38; 48; 57 | 25; 38; 48; 57. | |
| Наружный диаметр кожуховых труб, мм | 57; 76; 89; 108; 133; 159; 219 | 133; 159; 219 | 89; 108. | 57; 76; 89; 108. | |
| Условное давление, МПа, не более | в трубах | 1,6; 4,0; 6,3 | 1,6; 4,0 | 1,6; 4,0 | 6,3 |
| в кожухе | 1,6; 4,0; 6,3 | 1,6; 4,0 | 1,6; 4,0 | 1,6; 4,0; 6,3 | |
| Температура рабочей среды, °С | в трубах | От минус 30 до 300 | От минус 30 до 400 | От минус 30 до 400 | От минус 30 до 400 |
| в кожухе | От минус 30 до 300 | От минус 30 до 400 | От минус 30 до 400 | От минус 30 до 400 | |
| Длина теплообменных труб, мм | 1500; 3000; 4500; 6000; 9000. | 4500; 6000; 9000 | 3000; 4500; 6000; 9000. | 1500; 3000; 4500; 6000 | |
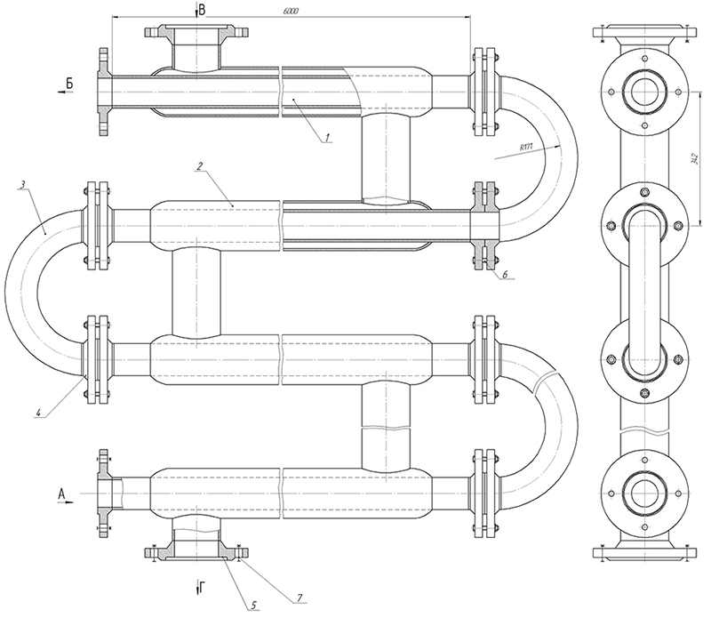
Чертеж теплообменника типа ТТ
Теплообменник «труба в трубе»; среда «жидкость-газ» . Трубчатые элементы 1 и 2 — внутренний и внешний; 3 — соединительный элемент (двойник); 4 и 6 — фланцы; 5, 7 и 8 — крепеж; А и Б — вход и выход жидкости; В и Г — вход и выход газообразной среды.
Условное обозначение
Каждый вид двухтрубных теплообменников обозначается аббревиатурой в виде буквенно-цифровой комбинацией, которая содержит информацию об изделии.
Например, маркировка ТТОР-159/219-6,¾,0/9-Г-М2-Т имеет следующую расшифровку:
- ТТОР теплообменник тип ТТ однопоточный, разборный;
- 159/219 мм – диаметр теплообменной трубы/кожуха;
- 6,¾,0 Мпа – условное внутреннее/ внешнее давление теплообменной трубы; 9 длина труб в теплообменнике;
- Г – гладкая поверхность трубы;
- М2 – материал компонентов (cталь);
- Т – тропический вариант климатического исполнения.
Где купить теплообменники типа ТТ
Завод ООО "НПО "Спецнефтемаш" предлагает купить теплообменник типа ТТ по доступной цене. Поскольку реализация продукции производится напрямую с завода, мы гарантируем максимально быстрые сроки изготовления оборудования и доставки.
Для заказа теплообменников типа ТТ с индивидуальным подбором моделей вы можете позвонить в компанию по телефону 8–800–3021–565 звонки по РФ бесплатно) или отправить сообщение на адрес электронной почты info@snmash.ru. Для быстрого заказа можно использовать удобную форму онлайн. После заполнения короткой анкеты на нашем сайте с вами в ближайшее время свяжется менеджер.
